Descripción

EMPRENDIMIENTO DE 9 UNIDADES DE 2 AMB – EN PB CON COCHERA Y PATIO, 1° Y 2° PISO CON BALCON – ENTREGA JUNIO 2026

(Desarrollo)
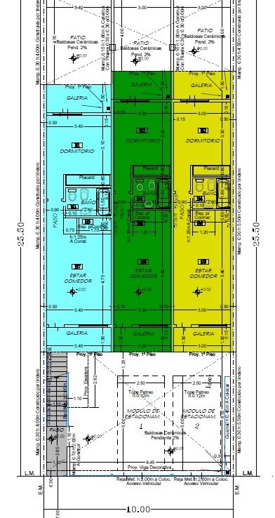
El proyecto consta de 9 UNIDADES FUNCIONALES, de 2 ambientes desarrollados en PB + 2 Pisos por escalera. Las plantas constan de 3 departamentos por piso, conformados al frente; compuestas por una cocina-comedor integrada, baño principal, dormitorio y patio y/o balcón al contra-frente.

(Instalaciones y Terminaciones)
Lo que respecta a las características principales de los departamentos se encuentran las siguientes INSTALACIONES Y TERMINACIONES:
• Artefacto de Cocina Eléctrico.
• Amueblamiento de Cocina completo.
• Griferías de Primera Línea.
• Ventanas de aluminio línea Modena con DVH (doble vidrio hermetico).
• Baño Principal con vanitory, inodoro con mochila, bidet, juego de accesorios y bañera.
• Portero.
• Pisos: Porcelanato en living y dormitorio- Cerámicos en cocina y baños.

(Localización)
Ubicado cercano al centro de San Justo, localidad principal del Municipio, con un gran crecimiento residencial en los últimos años. A pocas cuadras de distintas plazas y centros comerciales, de prestigiosas instituciones educativas, y directa vía de acceso a los más importantes corredores de la zona Oeste como son la Ruta Nacional Nº 3, Monseñor Bufano, Autopista Acceso Oeste y la Av. Gral Paz.

CONDICIONES DE VENTA:
Financiacion: 30% al boleto + 18 Cuotas Fijas en Dólares.
Gastos de Escritura a cargo del COMPRADOR.
Honorarios: 3% del VALOR DE VENTA.
Gastos: 1% del VALOR DE VENTA.

MARTILLERO Y CORREDOR PÚBLICO – COLEGIADO 778 LA MATANZA

– Las medidas y superficies expuestas son aproximadas, los datos definitivos surgirán del título de propiedad – El valor consignado de expensas mensuales está sujeto a verificación y/o ajustes – Las imágenes expuestas son de carácter no contractual –

Detalles

Actualizado en octubre 14, 2025 En 11:54 am

  • Etapa: Construcción
  • Entrega: 6-2026
  • Forma de pago: CONSULTAR FORMA DE PAGO
  • 9 unidades
  • 9 departamentos
  • 3 pisos
  • Precio: USD49.000 - USD65000
  • 3 cochera/s
  • Antiguedad: Estrenar
  • Dirección: Zapiola 3000
  • Ciudad: La Matanza
  • Provincia: Bs.As. G.B.A. Oeste
  • Localidad: San Justo

Características

  • Agua corriente
  • Luz

Vídeo

Unidades

Departamento

2 ambientes

38.000 m²

1 habitaciones

1 baño

USD57000.00
Departamento

2 ambientes

38.000 m²

1 habitaciones

1 baño

USD57000.00
Departamento

2 ambientes

38.000 m²

1 habitaciones

1 baño

USD57000.00
Departamento

2 ambientes

38.000 m²

1 habitaciones

1 baño

USD49000.00
Departamento

2 ambientes

38.000 m²

1 habitaciones

1 baño

USD49000.00
Departamento

2 ambientes

38.000 m²

1 habitaciones

1 baño

USD49000.00
Departamento

2 ambientes

38.000 m²

1 habitaciones

1 baño

USD65000.00
Departamento

2 ambientes

38.000 m²

1 habitaciones

1 baño

USD65000.00
Departamento

2 ambientes

38.000 m²

1 habitaciones

1 baño

USD65000.00

Información de contacto

Alejandro Javier Bruno
CONTACTO
Alejandro Javier Bruno
9 11 44411223
info@alejandrojbrunoinmobiliaria.com.ar

Preguntar sobre esta propiedad

Abrir chat